TECHNICAL TIDBIT
The Task of a Stator Coupling
In order to meet today’s dynamic requirements on encoders with bearings and stator couplings, much design work and testing is necessary, especially for motor applications. The end result should be superior signal quality under the most demanding conditions. Stator couplings play a very important performance role here.
The stability of a rotary encoder / drive encoder system, in large part, depends on the coupling design, material, material thickness, and form. The slightest change can and will affect the overall performance. In some cases, machine manufacturers will develop their own coupling for various reasons not realizing the changes it can cause in the overall dynamics. In every instance, these changes will have an adverse effect, damaging the encoder. (When special circumstances require adjustments, HEIDENHAIN can provide customized solutions.)
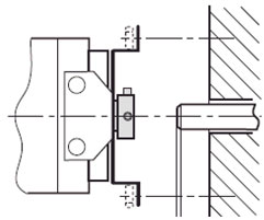
Think of the use of a stator coupling in this way: the rotary encoder along with the stator coupling form a vibrating mass system whose natural frequency should be as high as possible. Natural frequency is the frequency at which a system will begin to vibrate as it is set into motion. The goal is to make this frequency as high as possible while maintaining bearing life, signal quality and overall longevity. Not an easy task. The following example (Fig. 1) highlights a coupling design based on a servo motor application.

(Fig. 1)

(Fig. 2)
This unique design with mounted stator coupling and tapered shaft literally allows the encoder to become one with the motor. This design offers several benefits from a dynamic performance range to ease of installation ideal for mass production situations. The mounting process is quite simple. The tapered shaft of the encoder fits into the mating taper of the measured shaft (Fig. 2). This means the encoder is self aligning to the bearing and shaft of the motor. The only hardware required is the central mounting screw that brings the shafts together. The stator coupling of the encoder is clamped in the pocket by an axially tightened screw. As you can see in (Fig 3), the screw forces the expansion of the coupling via two-nuts. At first glance, it may not seem rigid enough, however, the combination of tapered shaft and this style coupling has ~4x the holding torque than standard stator couplings. (Fig. 4)
(Fig. 3) |
(Fig. 4) |
The task of a stator coupling goes far beyond just simply attaching the encoder to a measured shaft. In review of the benefits, we now know:
- No axial mounting tolerances between shaft and stator housing for this particular design
- High natural frequency of the coupling ≥ 1,800 Hz
- High torsional rigidity of the shaft coupling
- Lower profile, less real estate required for mounting
- Simple installation
- Up to ± 0.5 mm axial motion
These are just some of the reasons why HEIDENHAIN leads the industry when it comes to quality and innovation.
Additional Resources

Print
